5% Rabatt mit Gutscheincode: hak2026
Und hier die Details/Lieferumfang im einzelnen:
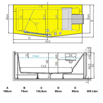
- Badewanne 180x75/80x62cm (Länge x Breite x Höhe) auf stabilem Fußgestell, Farbe weiß
- verstärkter Wannenboden + Glasfaserarmierung für hohe Stabilität
- Höhe der Badewanne mit Wannenschürze: 62 cm
- Tür aus Einscheibensicherheitsglas mit Glasbeschichtung
- Tür mit manuellem Sicherheits-Schliess-System
- Griff, Schloss und Scharniere aus hochwertigem polierten Edelstahl
- Spezielles Ablaufsystem für 40% schnelleres Entleeren der Badewanne
- Duschkabine aus Klarglas
- Duschsitz und Rückenlehne in der Farbe Grau
- Front- und Seitenschürze
- Ablaufgarnituren mit Sifon
Armaturen sind nicht im Lieferumfang enthalten. Auch die Armaturlöcher sind noch nicht gebohrt!
Hinweis: Sie kaufen nur den Artikel wie oben beschrieben. Dekoration und eventuell andere Artikel auf den Produktbildern gehören nicht zum Lieferumfang.
Informationen zur Produktsicherheit
